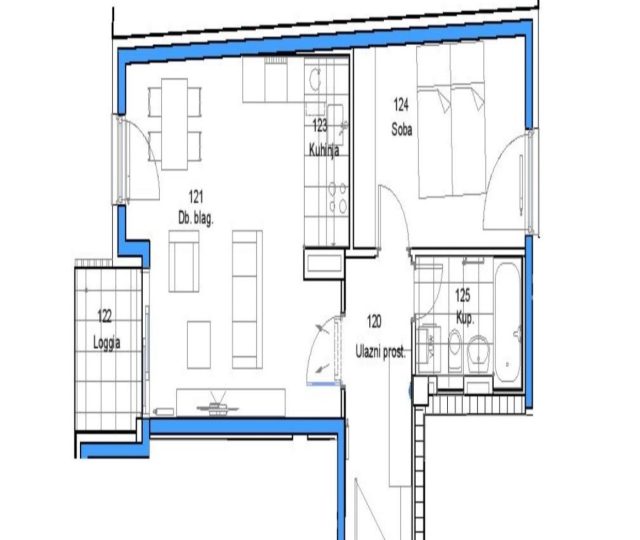
Opis
– 2 s, 54,48 m2, 1 kat, a koji se sastoji od ulaznog
prostora_površine 7,07 m2, dnevnog boravka sa integriranom
blagovaonicom_površine 23,99 m2, kuhinje_površine 3,24 m2,
spavaće sobe_površine 12,86 m2, kupaonice sa WC-om_površine
4,59 m2, lođe _ površine 3,63 (obračunato prema koeficijentu, površine
2,73 m2, orijentacije I-Z.
Obvezna kupnja parkirnog mjesta ili garažno parkirnog mjesta.
– vanjsko natkriveno parkirno mjesto
– vanjsko nenatkriveno parkirno mjesto
– garažno parkirno mjesto
Obvezna je i kupnja spremišta koja imaju površine od
3-7,5 m2.
Predviđen rok završetka -ljeto 2024.,g.
Detalji
-
Površina:54,48 m2
-
Najam / prodaja:
-
Kat:1


